Nowe mieszkanie ul. Sportowa
Sportowa, Brwinów, mazowieckie
- 437 580 zł
- 39,78 m²
- 11 000 zł/m²
Adrian Koziarek
Skontaktuj się
Nowe mieszkanie ul. Sportowa
Sportowa, Brwinów, mazowieckie
zaktualizowane:
16 maja 2025
Nowe mieszkanie ul. Sportowa
Inwestycja: Nowa Sportowa
Zaktualizowane: 16 maja 2025
437 580 zł 39,78 m² 11 000 zł/m²
czerwiec 2026
parter/3
2
garaż
deweloperski
Zobacz na mapie
Termin realizacji:
czerwiec 2026Piętro:
parter/3Liczba pokoi:
2Miejsce postojowe:
garażStan mieszkania:
deweloperskiSzczegóły ogłoszenia
- Typ oferty: nowe mieszkanie na sprzedaż
- Cena: 437 580 zł (11 000 zł/m²)
- Termin realizacji: czerwiec 2026
- Status oferty: dostępne
- Rynek: pierwotny (oferta dewelopera)
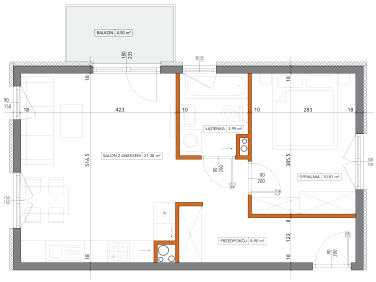
- Charakterystyka mieszkania: 39,78 m², 2 pokoje, 1 łazienka; stan: deweloperski
- Budynek: blok mieszkalny
- winda
- Rozkład mieszkania: piętro 0/3, jednopoziomowe
- Powierzchnia dodatkowa: ogródek (26,9 m²)
- Kuchnia: aneks kuchenny
- Miejsce/a postojowe: w garażu wielostanowiskowym, przynależne do mieszkania - bez obowiązku zakupu
- Bezpieczeństwo: monitoring
- Źródło: oferta dewelopera: Wiewiórka Development Sp. z o.o., zaktualizowane: 16.05.2025
- sygnatura ogłoszenia: J05
Lokalizacja
- Inwestycja: Nowa Sportowa
- Adres: Sportowa, Brwinów, mazowieckie
- Otoczenie: tereny zielone i rekreacyjne, obiekty handlowo-usługowe
- Na terenie inwestycji: plac zabaw
- W pobliżu przedszkole, szkoła podstawowa, szkoła średnia, restauracja, apteka, przychodnia, przystanek autobusowy, dworzec kolejowy, supermarket, centrum handlowe, plac zabaw, żabka, szkółka piłkarska, las
Opis nieruchomości
Zapraszamy do zapoznania się z ofertą 2-pokojowego mieszkania składającego się z pokoju dziennego z aneksem kuchennym, sypialni, łazienki oraz ogródka. (...)

Inwestycja realizowana przez:
Wiewiórka Development Sp. z o.o.
Adrian Koziarek
Kapucka 38/10
Ożarów Mazowiecki 05-850
| MieszkanieWirtualna wizytaJ20 | 43,88 m² | 10 100 zł/m² | 2/3 | 2 | 443 188 zł |
| MieszkanieWirtualna wizyta | ||||
|
||||
| J20 |
- Budynek: blok mieszkalny
- Stan wykończenia: deweloperski
- Charakterystyka mieszkania: jednopoziomowe, aneks kuchenny, 1 łazienka
- Ogrzewanie: gazowe
- Powierzchnia dodatkowa: balkon (4,5 m²)
- Miejsce/a postojowe:: w garażu wielostanowiskowym, przynależne do mieszkania - bez obowiązku zakupu
- Udogodnienia: winda
Zapraszamy do zapoznania się z ofertą 2-pokojowego mieszkania składającego się z pokoju dziennego z aneksem kuchennym, sypialni, garderoby, łazienki oraz
Więcej
sygnatura: J20
| MieszkanieK04 | 43,49 m² | 11 500 zł/m² | parter/3 | 2 | 500 135 zł |
| Mieszkanie | ||||
|
||||
| K04 |
| MieszkanieK32 | 52,47 m² | 10 300 zł/m² | 3/3 | 3 | 540 441 zł |
| Mieszkanie | ||||
|
||||
| K32 |
| MieszkanieK29 | 71,17 m² | 9 800 zł/m² | 3/3 | 3 | 697 466 zł |
| Mieszkanie | ||||
|
||||
| K29 |
| MieszkanieK20 | 43,88 m² | 10 100 zł/m² | 2/3 | 2 | 443 188 zł |
| Mieszkanie | ||||
|
||||
| K20 |
| MieszkanieK11 | 43,88 m² | 10 100 zł/m² | 1/3 | 2 | 443 188 zł |
| Mieszkanie | ||||
|
||||
| K11 |
| MieszkanieK02 | 43,86 m² | 11 000 zł/m² | parter/3 | 2 | 482 460 zł |
| Mieszkanie | ||||
|
||||
| K02 |
| MieszkanieK28 | 65,10 m² | 10 300 zł/m² | 3/3 | 3 | 670 530 zł |
| Mieszkanie | ||||
|
||||
| K28 |
| MieszkanieJ13 | 43,49 m² | 10 700 zł/m² | 1/3 | 2 | 465 343 zł |
| Mieszkanie | ||||
|
||||
| J13 |
| MieszkanieK01 | 41,09 m² | 11 100 zł/m² | parter/3 | 2 | 456 099 zł |
| Mieszkanie | ||||
|
||||
| K01 |
Więcej
Adrian Koziarek
799 373...
799 373 039










